TBD SW 20TH PL
TBD SW 20TH PL
TBD SW 20TH PL
TBD SW 20TH PL
TBD SW 20TH PL
TBD SW 20TH PL
TBD SW 20TH PL
VIEW PHOTOS
Courtesy of COMPASS FLORIDA LLC, Anna Holt Listing Contact: 941-279-3630 
$5,000,000

TBD SW 20TH PL

22 Acres

Description

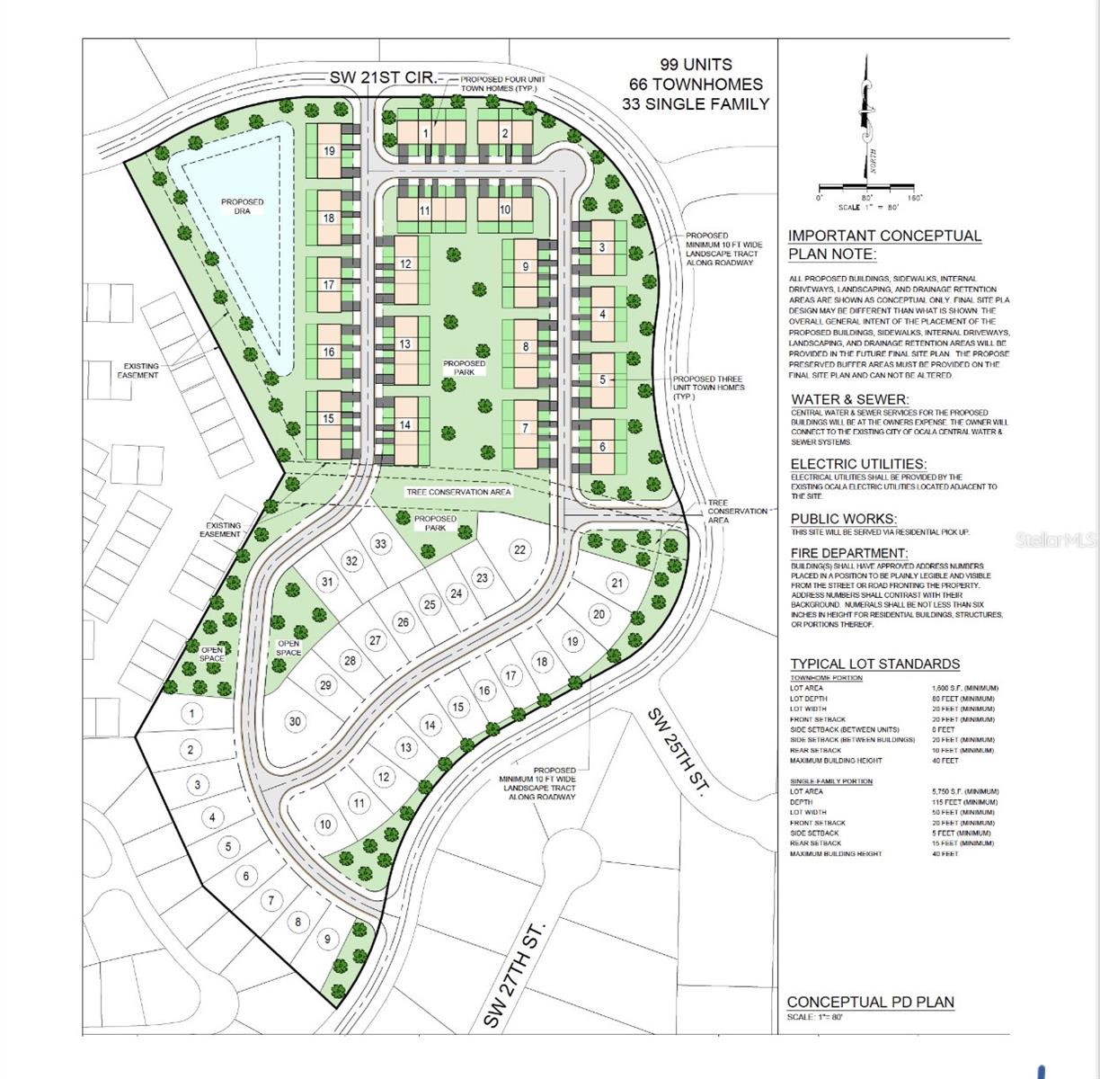
Nestled in the heart of Ocala, Willow Creek at Cala Hills presents an exceptional opportunity for residential development within one of the area's most desirable established communities. This +-22-acre site is fully entitled and ready for the next phase of growth, with city water and sewer already to the property and an HOA in place. The approved site plan offers flexibility for a mix of 66 townhomes and 33 single-
family homes, or alternatively, 68 single-family homes--allowing developers to tailor the product mix to meet market demand. The property benefits from existing community infrastructure, attractive surrounding neighborhoods, and convenient access to major corridors, employment centers, and retail amenities. With survey and site plan in hand, Willow Creek at Cala Hills offers a rare "plug- and-play" opportunity for builders or investors seeking a prime infill development site in the core of Ocala's rapid residential expansion zone.

Ocala & Marion County Growth Highlights Top Growth Market: Ocala ranks among Florida's Top 10 Fastest-Growing Metros and has been recognized by the U.S. Census Bureau for its consistent population and job growth. Population Surge: Marion County's population exceeds 400,000 and continues to grow at over 2% annually, fueled by in-migration from across the U.S. Strong Employment Base: Anchored by healthcare, logistics, and advanced manufacturing, Ocala is home to major employers like FedEx, Chewy, Amazon, Cardinal LG, and Reilly Arts Center's expanding cultural hub. Connectivity: Centrally located within 90 minutes of Orlando,

Share Property

Location

TBD SW 20TH PL, OCALA, FL 34471

Status

For Sale
image

Schedule a Showing

We would love to show you our beautiful property. Please select your preferred date and time below. An agent will be in touch shortly to confirm your appointment.

Schedule a Showing

We would love to show you our beautiful property. Please select your preferred date and time below. An agent will be in touch shortly to confirm your appointment.
Thank you for your interest in TBD SW 20TH PL, OCALA, FL 34471. We are reviewing your request and will be in touch shortly!
Anna Holt

Anna Holt

TITLE

Team Member

PHONE

941-962-7265

360 Virtual Tour

Take a tour of this property

Property Amenities

Area & Lot
Lot Area 22 Acres
MLS® ID A4670301
High School West Port High School
Middle School Liberty Middle School
Elementary School Saddlewood Elementary School
Type Land
Status For Sale
Exterior
Water Source Public
Sewer Public Sewer
Lot Features Buildable, Street Lights, Paved
Utilities BB/HS Internet Available, Cable Available, Electricity Available, Natural Gas Available, Phone Available, Public, Sewer Available, Underground Utilities, Water Available
Finance
Sales Price $5,000,000
HOA Fees $129 monthly
Real Estate Tax $5,231 yearly

Ocala

Surrounded by picturesque landscapes and steeped in equestrian heritage, this astounding city captivates with its serene ambiance and vibrant community spirit.

Mortgage Calculator

Estimate your monthly mortgage payment, including the principal and interest, property taxes, and HOA. Adjust the values to generate a more accurate rate.
All estimates are provided for informational purposes only. Actual amounts may vary.
$0,000 Your Payment 20 15 65
$0,000 Your Payment

Work With Us

The Holt Team is renowned for their unmatched ability to connect buyers with their dream properties and help sellers achieve their real estate aspirations. They understand that the ultimate determination of success is not awards or accolades, but the admiration of their clients. It's this unwavering commitment to client satisfaction that has earned them a loyal following and countless accolades.