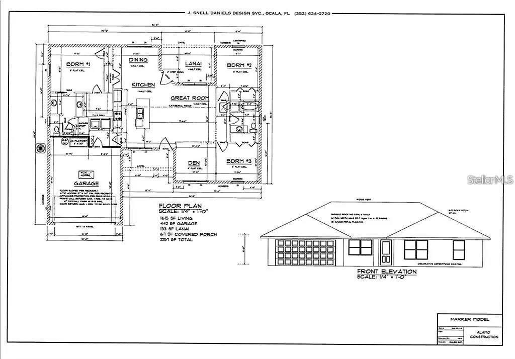
3 Beds 2 Baths 1,615 Sq.Ft.
 
  The Holt Team is renowned for their unmatched ability to connect buyers with their dream properties and help sellers achieve their real estate aspirations. They understand that the ultimate determination of success is not awards or accolades, but the admiration of their clients. It's this unwavering commitment to client satisfaction that has earned them a loyal following and countless accolades.